2 pièces maison dans Tours
-
Surface
- 31 m²
-
Type de propriété
- Maison
-
Pièces
- 2 pièces
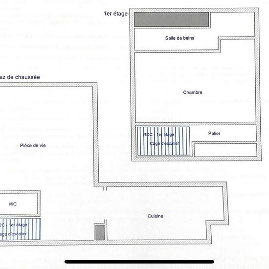
Exclusivité - maison 2 pièces avec terrasse à louer : dans le quartier paul bert, à tours (37100) découvrez cette petite maison de 2 pièces de 31,34 m² avec sa terrasse privative dans cour. La maison est composée comme suit : une cuisine indépendante, une pièce de vie donnant sur cour, une chambre, une salle d'eau et des toilettes indépendantes. Le chauffage est individuel électrique actuellement disponible contactez maëlle pas de gli.
- Louer
- 620 € par mois
- Ville
- 37100, Tours
- Durée de location
- -
- Propriétaire vérifié
- Oui
- Date
- Il y a 25 jours
- Disponible
- Contacter le propriétaire
- Services
- Contacter le propriétaire
- Dépôt de garantie
- 590 €
- Avance sur loyer
- Contacter le propriétaire
Emplacement