3 pièces appartement dans Albertville
-
Surface
- 62 m²
-
Type de propriété
- Appartement
-
Pièces
- 3 pièces
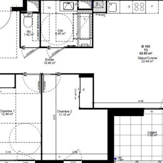
B103 OXYGENE - VENEZ PROFITER DEURUN JOLI T3 DE 62 M² AVEC BALCON A LEURINTERIEUR DEURUNE RESIDENCE NEUVE BBC DE STANDING. Il est composé dEURune entrée avec placard, une belle pièce de vie dEURune cuisine US (meubles haut et bas, hotte, plaque de cuisson et four) donnant sur la terrasse, deux chambres en sol parquet avec placard, une salle de bain aménagée avec meuble sous vasque et sèche serviette. Deux places de parking en sous-sol. Chauffage individuel gaz. Visiophone. Consommation d'énergie totale entre 500-730EUR par an (prix moyens de...
- Louer
- 830 € par mois
- Ville
- 73200, Albertville
- Durée de location
- -
- Propriétaire vérifié
- Oui
- Date
- Il y a 3 jours
- Disponible
- Contacter le propriétaire
- Services
- 90 €
- Dépôt de garantie
- 730 €
- Avance sur loyer
- Contacter le propriétaire
Emplacement