
3 pièces appartement dans Albertville
-
Surface
- 61 m²
-
Type de propriété
- Appartement
-
Pièces
- 3 pièces
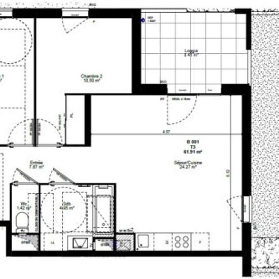
T3 B001 OXYGENE A SAISIR SUPERBE T3 AVEC TERRASSE ET SON BEAUJARDIN PRIVATIF DE 29m² A L'INTERIEUR DEURUNE RESIDENCE NEUVE DE STANDING A FAIBLE CONSOMMATION ENERGETIQUE. Il est composé d'une entrée avec placard, une belle pièce de vie d'une cuisine US (meubles haut et bas, hotte, plaque de cuisson et four) donnant sur la terrasse, deux chambres en sol parquet avec placard, une salle de bain aménagée avec meuble sous vasque et sèche serviette. Deux places de parking en sous-sol. Chauffage individuel gaz. Visiophone. Consommation d'énergie tot...
- Louer
- 850 € par mois
- Ville
- 73200, Albertville
- Durée de location
- -
- Propriétaire vérifié
- Oui
- Date
- Hier
- Disponible
- Contacter le propriétaire
- Services
- 90 €
- Dépôt de garantie
- 710 €
- Avance sur loyer
- Contacter le propriétaire
Emplacement