3 pièces appartement dans Boulogne billancourt
-
Surface
- 59 m²
-
Type de propriété
- Appartement
-
Pièces
- 3 pièces
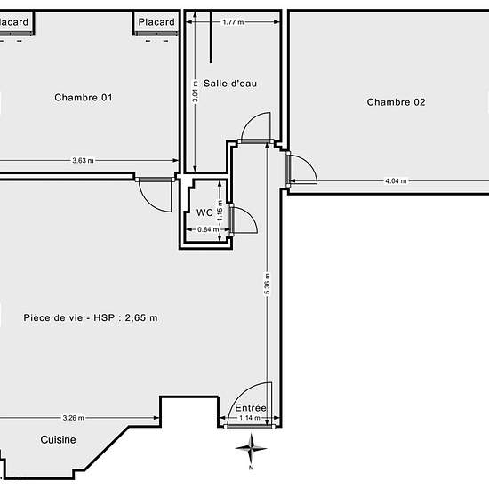
Cleo propose à la location un 3 pièces de 59m² au 1er étage par ascenseur, ainsi qu'une place de parking, situés rue Alfred Laurant. La visite révèle un appartement traversant Est-Ouest entièrement refait à neuf. Le plan, bien proportionné, est composé d'un séjour (avec cuisine ouverte) de près de 30m², de deux chambres de 14m² et 11m², d'une salle d'eau et de WC séparés. Plusieurs rangements sont déjà prévus pour un appartement "clé en main". Profitez d'un appartement rénové avec accès direct au parking, au sein d'une rue calme en plein Bou...
- Louer
- 1 600 € par mois
- Durée de location
- -
- Propriétaire vérifié
- Oui
- Date
- Aujourd'hui
- Disponible
- Contacter le propriétaire
- Services
- Contacter le propriétaire
- Dépôt de garantie
- Contacter le propriétaire
- Avance sur loyer
- Contacter le propriétaire
Emplacement