3 pièces appartement dans Bourg achard
-
Surface
- 65 m²
-
Type de propriété
- Appartement
-
Pièces
- 3 pièces
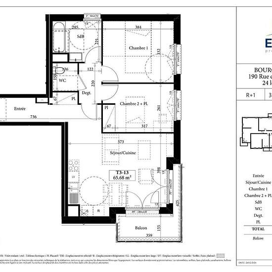
Bourg-achard - secteur mairie à louer, appartement f3 situé dans une résidence neuve avec ascenseur et parking, idéalement placée en plein coeur de bourg-achard, à proximité immédiate des commerces et de la mairie. Un appartement comprenant : séjour avec balcon et rangement, espace cuisine aménagée (meubles hauts et bas, emplacement plaque, hotte, évier et 2 branchements machine), dégagement, 2 chambres, salle de bains (baignoire et meuble vasque), wc. Chauffage et eau chaude individuel gaz - eau froide individuelle. Ascenseur - interphone. ...
- Louer
- 770 € par mois
- Ville
- 27310, Bourg achard
- Durée de location
- -
- Propriétaire vérifié
- Oui
- Date
- Il y a 5 jours
- Disponible
- Contacter le propriétaire
- Services
- Contacter le propriétaire
- Dépôt de garantie
- 680 €
- Avance sur loyer
- Contacter le propriétaire
Emplacement