3 pièces appartement dans Castanet tolosan
-
Surface
- 61 m²
-
Type de propriété
- Appartement
-
Pièces
- 3 pièces
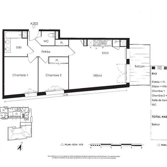
Située proche des transports en commun, du centre ville et des commerces Visite virtuelle sur notre site ELYADE (Réf: 20499) Nous vous proposons ce T3 situé au 2ème étage avec ascenseur composé d'une entrée, séjour avec cuisine équipée (évier inox, plaque 4 feux, hotte, meubles hauts et bas), deux chambres dont une avec placard, salle de bains aménagée et WC séparé, un balcon de 8.24m² , deux places de parking sous-sol.
- Louer
- 717 € par mois
- Ville
- 31320, Castanet tolosan
- Durée de location
- -
- Propriétaire vérifié
- Oui
- Date
- Il y a 5 jours
- Disponible
- Contacter le propriétaire
- Services
- 76 €
- Dépôt de garantie
- 717 €
- Avance sur loyer
- Contacter le propriétaire
Emplacement