3 pièces appartement dans Chanteloup les vignes

Surface
54 m²
Type de propriété
Appartement
Pièces
3 pièces

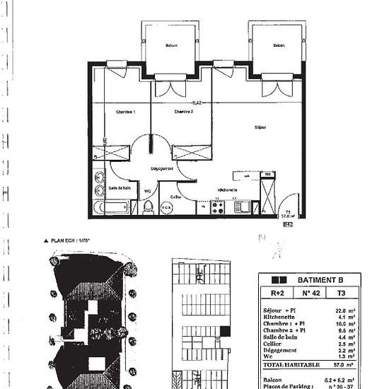
La résidence récente est à 40 min de Paris, implantée près des commerces et à deux pas des écoles et des transports (Bus et RER) Nous vous proposons cet appartement T3 situé au 2 ème étage avec ascenseur Il se compose d'une entrée avec placard, d'une cuisine équipée (évier, plaques 4 feux, meubles hauts et meubles bas) ouverte sur séjour avec accès sur le 1er balcon, de deux chambres avec placard dont une avec accès sur le balcon, d'une salle de bain et d'un wc séparé Le logement bénéficie d'un emplacement de parking en sous-sol. Mandat ...

Louer
793 € par mois
Durée de location
-
Propriétaire vérifié
Oui
Date
Il y a 5 jours
Disponible
Contacter le propriétaire
Services
140 €
Dépôt de garantie
793 €
Avance sur loyer
Contacter le propriétaire
Emplacement