
3 pièces appartement dans Clermont ferrand
-
Surface
- 59 m²
-
Type de propriété
- Appartement
-
Pièces
- 3 pièces
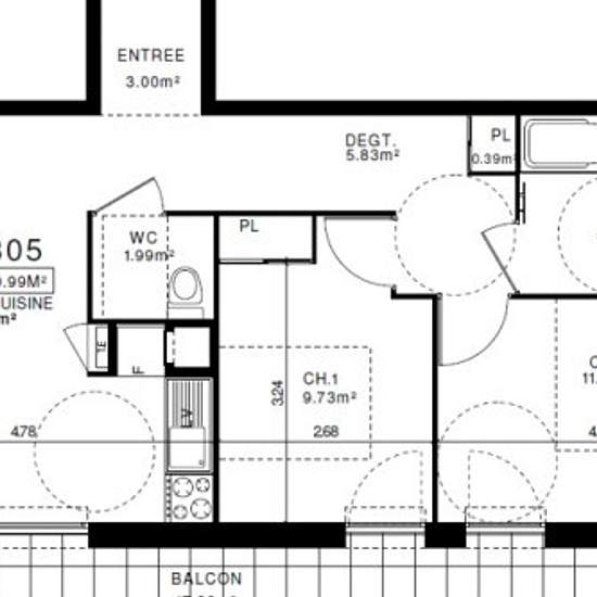
A305 LE FLAUBERT : T3 COCON ENTIEREMENT TOURNE VERS SA TERRASSE DE 18M² SANS VIS-A-VIS DANS RESIDENCE RECENTE (2024) DE STANDING A FAIBLE CONSOMMATION ENERGETIQUE. Pièce à vivre claire avec cuisine US aménagée (plaques vitro, four, hotte, meubles hauts et bas) .2 chambres en sol parquet dont une avec placard mural aménagé. Salle de bain avec meuble sous vasque et sèche-serviettes. Place de parking privative en sous-sol privative. CHAUFFAGE IND AU GAZ. VISIOPHONE. PROCHE COMMERCES. Consommation d'énergie totale entre 433 EUR et 586 EUR par an...
- Louer
- 723 € par mois
- Ville
- 63000, Clermont ferrand
- Durée de location
- -
- Propriétaire vérifié
- Oui
- Date
- Hier
- Disponible
- Contacter le propriétaire
- Services
- 60 €
- Dépôt de garantie
- 723 €
- Avance sur loyer
- Contacter le propriétaire
Emplacement