3 pièces appartement dans Cluses

Surface
57 m²
Type de propriété
Appartement
Pièces
3 pièces

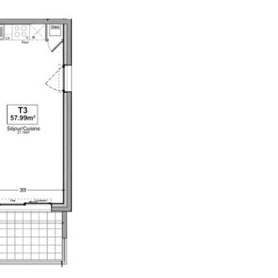
B206 LA GENESE : SUPERBE TERRASSE DE 16.18M² EXPO PLEIN SUD POUR CE MAGNIFIQUE T3 BIEN AGENCE DE 58M² DONNANT ENTIERREMENT SUR L'INTERIEUR D'UNE RESIDENCE RECENTE BBC DE STANDING L'appartement se compose d'une entrée avec rangement, d'un séjour avec cuisine US équipée et meublée (hotte, plaques vitro, four, meubles haut et bas), deux chambres en sol parquet dont une de 11.12m², une salle de bain avec meuble sous vasque et sèche serviettes. WC séparés Garage simple fermé en sous-sol sécurisé et place de parking extérieur privative. Vidéophone...

Louer
740 € par mois
Durée de location
-
Propriétaire vérifié
Oui
Date
Il y a 2 jours
Disponible
Contacter le propriétaire
Services
85 €
Dépôt de garantie
705 €
Avance sur loyer
Contacter le propriétaire
Emplacement