3 pièces appartement dans Cluses
-
Surface
- 64 m²
-
Type de propriété
- Appartement
-
Pièces
- 3 pièces
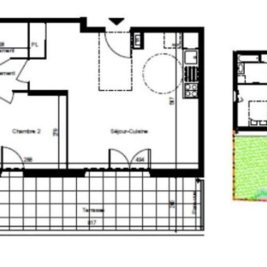
D003 Le Clusoé A SAISIR BELLE CONFIGURATION POUR CE T3 DE 64M²AVEC TERRASSE ET SONT JARDIN DE 69M² AU COEUR D'UNE RESIDENCE RECENTE 9BBC DE STANDING. Il est composé d'une belle pièce de vie de 28m², une cuisine US (meubles haut et bas, hotte, plaque de cuisson et four) donnant sur la terrasse, deux chambres en sol parquet avec placard, une salle de bain aménagée avec meuble sous vasque et sèche serviette. Deux garages simples fermés en sous-sol. Chauffage individuel gaz. Visiophone. Consommation d'énergie totale entre 506 -685EUR par an (pri...
- Louer
- 760 € par mois
- Ville
- 74300, Cluses
- Durée de location
- -
- Propriétaire vérifié
- Oui
- Date
- Hier
- Disponible
- Contacter le propriétaire
- Services
- 126 €
- Dépôt de garantie
- 767 €
- Avance sur loyer
- Contacter le propriétaire
Emplacement