3 pièces appartement dans Creteil

Surface
62 m²
Type de propriété
Appartement
Pièces
3 pièces

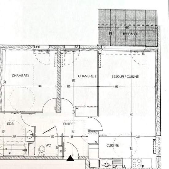
Créteil, secteur Val De Brie, moins de 10 minutes à pied de la rue piétonne et ses commerces. Dans une résidence très récente (2018) sécurisée et bien entretenue, un appartement 3 pièces principales en rez-de-jardin (terrasse -jardin 33 m²) composé : entrée, cuisine aménagée et équipée ouverte sur un vaste séjour, une salle de bains, WC, 2 chambres avec placard / dressing. Toutes les pièces donnent sur le jardin, pas de travaux à prévoir. Une place de parking en sous-sol complète ce lot. Visites Century 21 ACV CRETEIL TOM en sus : 23.58€ Mon...

Louer
1 300 € par mois
Durée de location
-
Propriétaire vérifié
Oui
Date
Il y a 4 jours
Disponible
Contacter le propriétaire
Services
Contacter le propriétaire
Dépôt de garantie
1 100 €
Avance sur loyer
Contacter le propriétaire
Emplacement