3 pièces appartement dans Echirolles
-
Surface
- 90 m²
-
Type de propriété
- Appartement
-
Pièces
- 3 pièces
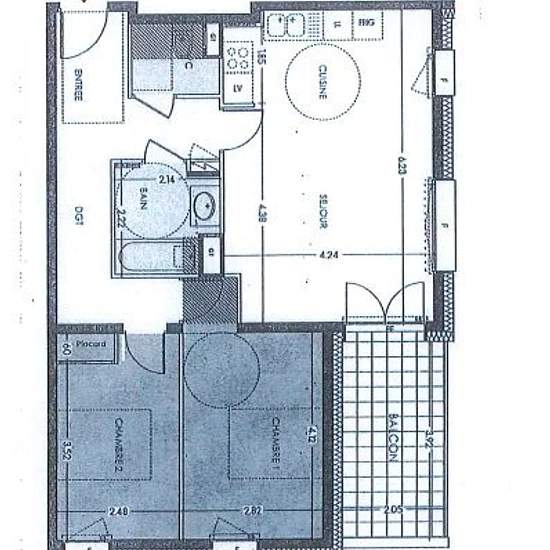
En Exclusivité : Loué ! En la résidence Cap Sud bâtie en 2013,exposé N/E, au 3° avec ascenseur, joli appartement type 3 de 66,95m² avec cellier sur palier et garage. Le hall d'entrée dessert une salle de bain, un wc et mène au coin nuit doté de deux chambres. Le séjour/cuisine équipée de 25m², lumineux, dissocié du premier espace, s'ouvre sur un balcon de 8m² à la vue dégagée. -Espace Comboire et A480 sont en accès direct -Les menuiseries sont en double vitrage pvc aux volets roulants électriques et manuels,le chauffage est collectif gaz, un...
- Louer
- 685 € par mois
- Ville
- 38130, Echirolles
- Durée de location
- -
- Propriétaire vérifié
- Oui
- Date
- Il y a 31 jours
- Disponible
- Contacter le propriétaire
- Services
- Contacter le propriétaire
- Dépôt de garantie
- Contacter le propriétaire
- Avance sur loyer
- Contacter le propriétaire
Emplacement