3 pièces appartement dans Fresnes
-
Surface
- 59 m²
-
Type de propriété
- Appartement
-
Pièces
- 3 pièces
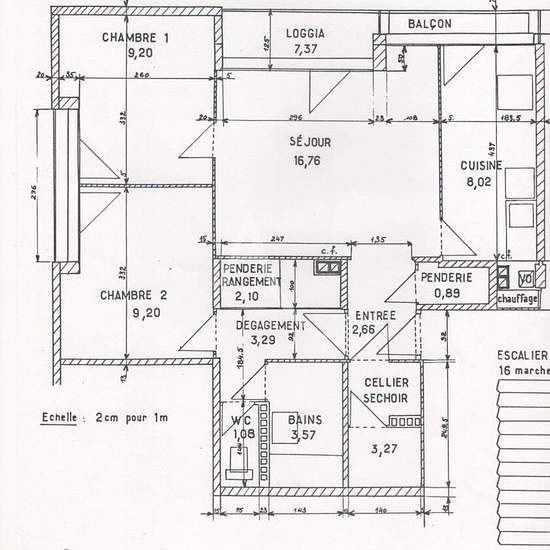
A louer, un joli 3 pièces MEUBLE de 59.75m² située allée des Fauvettes à Fresnes, comprenant une entrée avec placard, une salle d'eau, des WC séparés, deux chambres, une cuisine ouverte avec balcon et débarras séparé. Le logement comprend également une place de parking. Proche de commerces, à 8 minutes à pied du bus 187, à 3 minutes du bus 184. Disponible tout de suite.
- Louer
- 1 300 € par mois
- Ville
- 94260, Fresnes
- Durée de location
- -
- Propriétaire vérifié
- Oui
- Date
- Il y a 2 jours
- Disponible
- Contacter le propriétaire
- Services
- Contacter le propriétaire
- Dépôt de garantie
- Contacter le propriétaire
- Avance sur loyer
- Contacter le propriétaire
Emplacement