3 pièces appartement dans Izon
-
Surface
- 65 m²
-
Type de propriété
- Appartement
-
Pièces
- 3 pièces
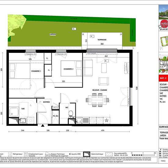
Immobilière atlantic aménagement (bailleur social) vous propose un appartement de type 3 au sein de notre résidence récente à izon, 23 avenue de cavernes. Situé au rez-de-chaussée avec jardin de 26 m². L'appartement est composé d'un séjour donnant sur une terrasse, une cuisine non aménagée non équipée, une salle d'eau, deux chambres avec placards et un wc séparé. Eau froide et eau chaude comprise dans les charges en provision. Proche de toutes commodités. Candidature sur dossier. Contact uniquement par mail (réponse à l'annonce). La visite d...
- Louer
- 912 € par mois
- Ville
- 33450, Izon
- Durée de location
- -
- Propriétaire vérifié
- Oui
- Date
- Il y a 26 jours
- Disponible
- Contacter le propriétaire
- Services
- Contacter le propriétaire
- Dépôt de garantie
- Contacter le propriétaire
- Avance sur loyer
- Contacter le propriétaire
Emplacement