3 pièces appartement dans Le blanc mesnil
-
Surface
- 65 m²
-
Type de propriété
- Appartement
-
Pièces
- 3 pièces
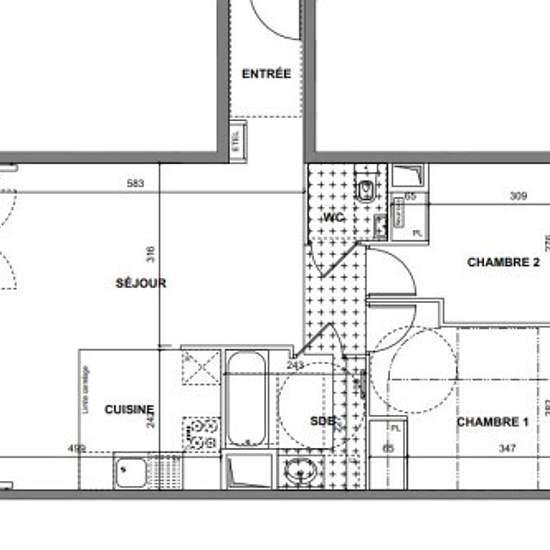
À LOUER NON MEUBLE– APPARTEMENT T3 NEUF AU BLANC-MESNIL – 102 Rue Aristide Briand, 93150 Le Blanc-Mesnil PHOTOS NON CONTRACTUELLES Venez visiter dès maintenant cet appartement T3 neuf de 65 m², situé dans une résidence neuve et sécurisée. Ce bien lumineux et agréable avec balcon est situé au 4ème avec ascenseur. Caractéristiques du bien : Séjour spacieux avec cuisine ouverte, offrant un espace de vie convivial et lumineux Un balcon, idéal pour profiter de l'extérieur 2 chambres Une salle de bain WC séparé Une place de parking privative en so...
- Louer
- 1 187 € par mois
- Ville
- 93150, Le blanc mesnil
- Durée de location
- -
- Propriétaire vérifié
- Oui
- Date
- Aujourd'hui
- Disponible
- Contacter le propriétaire
- Services
- 228 €
- Dépôt de garantie
- 1 187 €
- Avance sur loyer
- Contacter le propriétaire
Emplacement