3 pièces appartement dans Le pont de claix
-
Surface
- 55 m²
-
Type de propriété
- Appartement
-
Pièces
- 3 pièces
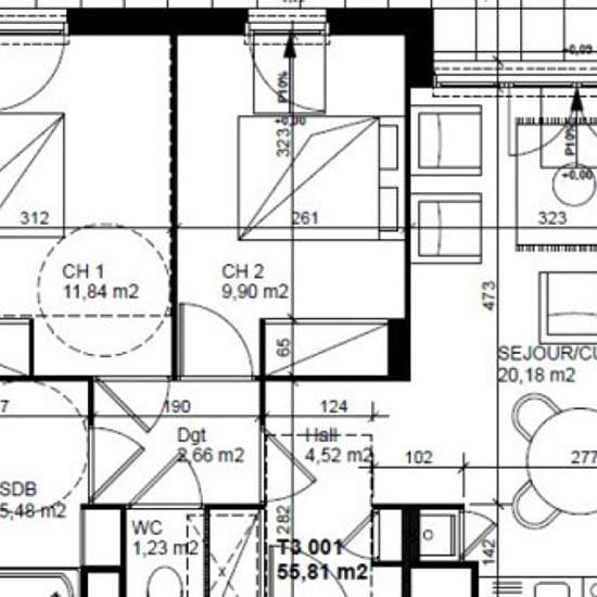
001 COURS D'Ô A SAISIR SUPERBE T3 AVEC TERRASSE A L'INTERIEUR D'UNE RESIDENCE NEUVE DE STANDING A FAIBLE CONSOMMATION ENERGETIQUE. Il est composé d'une belle pièce de vie d'une cuisine US (meubles haut et bas, hotte, plaque de cuisson et four) donnant sur la terrasse, deux chambres en sol parquet avec placard, une salle de bain aménagée avec meuble sous vasque et sèche serviette. Une place de parking en sous-sol. Chauffage individuel gaz. Visiophone. Consommation d'énergie totale entre 575 EUR et 778 EUR par an (prix moyens des énergies 2021...
- Louer
- 709 € par mois
- Ville
- 38800, Le pont de claix
- Durée de location
- -
- Propriétaire vérifié
- Oui
- Date
- Hier
- Disponible
- Contacter le propriétaire
- Services
- 101 €
- Dépôt de garantie
- 720 €
- Avance sur loyer
- Contacter le propriétaire
Emplacement