3 pièces appartement dans Le pont de claix
-
Surface
- 58 m²
-
Type de propriété
- Appartement
-
Pièces
- 3 pièces
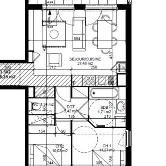
T3 302 COURS D'Ô A SAISIR JOLI T3 AVEC BALCON A L'INTERIEUR D'UNE RESIDENCE NEUVE BBC DE STANDING. Il est composé d'une jolie pièce de vie, une cuisine US (meubles haut et bas, hotte, plaque de cuisson et four) donnant sur le balcon, deux chambres en sol parquet avec placard, une salle de bain aménagée avec meuble sous vasque et sèche serviette. Une place de parking en sous-sol. Chauffage individuel gaz. Visiophone. Consommation d'énergie totale 705-954EUR par an (prix moyens des énergies indexés au 2021.2022.2023) Les informations sur les r...
- Louer
- 830 € par mois
- Ville
- 38800, Le pont de claix
- Durée de location
- -
- Propriétaire vérifié
- Oui
- Date
- Il y a 2 jours
- Disponible
- Contacter le propriétaire
- Services
- 101 €
- Dépôt de garantie
- 790 €
- Avance sur loyer
- Contacter le propriétaire
Emplacement