3 pièces appartement dans Limonest

Surface
64 m²
Type de propriété
Appartement
Pièces
3 pièces

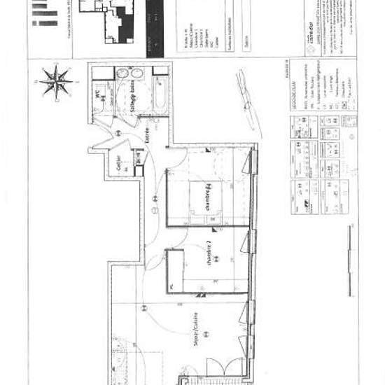
APPARTEMENT NEUF T3 - 64.10 M² - 168 AVENUE DU GENERAL DE GAULLE - 69760 LIMONEST - À louer - Appartement T3 neuf de 64,10 m² avec balcon et box garage - Limonest Au sein d'une résidence récente et sécurisée, découvrez ce superbe appartement T3 de 64,10 m², situé au 1er étage avec ascenseur. Il se compose d'une entrée avec placard, d'un séjour lumineux donnant accès à un balcon, d'une cuisine meublée et équipée, moderne et fonctionnelle, de deux chambres, d'une salle de bains et d'un WC indépendant. Un box fermé en sous-sol vient compléter c...

Louer
1 110 € par mois
Durée de location
-
Propriétaire vérifié
Oui
Date
Aujourd'hui
Disponible
Contacter le propriétaire
Services
Contacter le propriétaire
Dépôt de garantie
Contacter le propriétaire
Avance sur loyer
Contacter le propriétaire
Emplacement