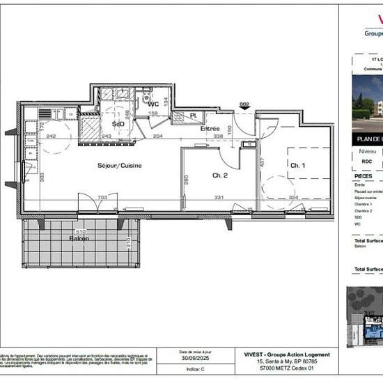
3 pièces appartement dans Longeville les metz

Surface
62 m²
Type de propriété
Appartement
Pièces
3 pièces

À saisir T3 neuf situé à Longeville-lès-Metz, en rez-de-chaussée dans une résidence senior et/ou PMR. Ce logement se compose d'une grande pièce de vie avec cuisine ouverte, de deux chambres, d'une salle d'eau, d'un W.C. séparé, d'une entrée avec placard, ainsi que d'un balcon. Logement situé en rez-de-chaussée, accessible et fonctionnel. Vous êtes intéressé(e) ' Merci de nous communiquer votre numéro unique départemental.

Louer
607 € par mois
Durée de location
-
Propriétaire vérifié
Oui
Date
Il y a 5 jours
Disponible
Contacter le propriétaire
Services
Contacter le propriétaire
Dépôt de garantie
519 €
Avance sur loyer
Contacter le propriétaire
Emplacement