3 pièces appartement dans Lormont
-
Surface
- 57 m²
-
Type de propriété
- Appartement
-
Pièces
- 3 pièces
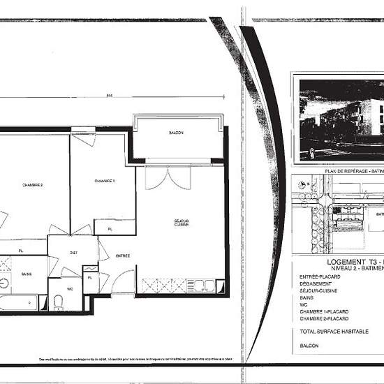
La résidence est située à 6kms de Bordeaux et à proximité des zones d'activités, commodités et transports (train, tramway et bus). Elle propose cet appartement T3 situé au 1er étage composé d'une entrée avec placard, d'un séjour avec coin cuisine (évier, meuble bas) s'ouvrant sur un balcon, de deux chambres avec placard, d'une salle de bains aménagée et d'un wc séparé. Mandat 4839. Possibilité Loca-Pass. Voir conditions en agence.
- Louer
- 645 € par mois
- Ville
- 33310, Lormont
- Durée de location
- -
- Propriétaire vérifié
- Oui
- Date
- Il y a 4 jours
- Disponible
- Contacter le propriétaire
- Services
- 171 €
- Dépôt de garantie
- 645 €
- Avance sur loyer
- Contacter le propriétaire
Emplacement