3 pièces appartement dans Lormont
-
Surface
- 55 m²
-
Type de propriété
- Appartement
-
Pièces
- 3 pièces
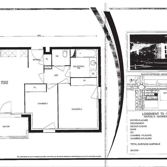
La résidence se trouve à seulement 6 kilomètres de Bordeaux, dans un secteur pratique et bien desservi par les transports, notamment le bus, le tramway et le train. Elle bénéficie également d'un environnement dynamique grâce à la proximité immédiate du Centre Commercial Les 4 Pavillons, regroupant de nombreuses boutiques, restaurants et services utiles au quotidien. On retrouve aussi divers commerces et services dans les rues voisines, renforçant le confort de vie. Le logement est un T3 lumineux situé au deuxième étage. Il comprend une entré...
- Louer
- 656 € par mois
- Ville
- 33310, Lormont
- Durée de location
- -
- Propriétaire vérifié
- Oui
- Date
- Il y a 5 jours
- Disponible
- Contacter le propriétaire
- Services
- 203 €
- Dépôt de garantie
- 656 €
- Avance sur loyer
- Contacter le propriétaire
Emplacement