3 pièces appartement dans Malakoff
-
Surface
- 90 m²
-
Type de propriété
- Appartement
-
Pièces
- 3 pièces
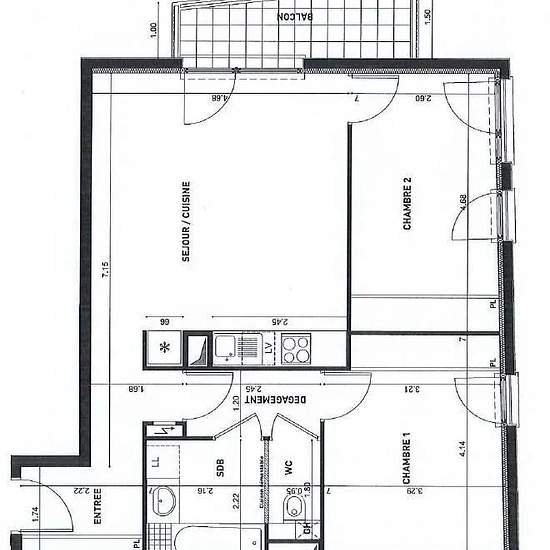
TROIS PIECES de 65 m² au 1er étage avec ascenseur d'une résidence calme et moderne au 87 rue Louis Girard, proche commerces et transports. Il comprend une entrée avec placard, un séjour donnant sur balcon avec cuisine US aménagée et semi équipée, deux chambres avec placards, une salle de bains et WC indépendant. Une place de parking en sous-sol. Chauffage et eau chaude individuels Gaz.
- Louer
- 1 162 € par mois
- Ville
- 92240, Malakoff
- Durée de location
- -
- Propriétaire vérifié
- Oui
- Date
- Il y a 12 jours
- Disponible
- Contacter le propriétaire
- Services
- Contacter le propriétaire
- Dépôt de garantie
- Contacter le propriétaire
- Avance sur loyer
- Contacter le propriétaire
Emplacement