3 pièces appartement dans Mouvaux
-
Surface
- 100 m²
-
Type de propriété
- Appartement
-
Pièces
- 3 pièces
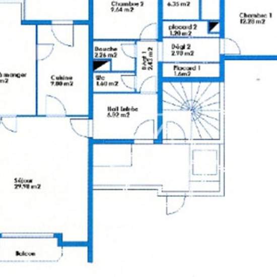
A LOUER - MOUVAUX, rue Mirabeau - Dans résidence calme et sécurisée, bel appartement T3 de 100 m² offrant entrée, salon de 30m² traversant très lumineux sur balcon bien exposé, un séjour de 14m², cuisine aménagée (hotte), deux chambres dont une avec salle de bains, une salle de douche et WC séparés. Nombreux placards. Une cave. Un garage en sous-sol (possibilité de garer 2 voitures). Local à vélos. Chauffage individuel électrique - menuiseries double-vitrage. A proximité du Tramway (station trois suisses). Environnement exceptionnel avec par...
- Louer
- 1 198 € par mois
- Ville
- 59420, Mouvaux
- Durée de location
- -
- Propriétaire vérifié
- Oui
- Date
- Il y a 2 jours
- Disponible
- Contacter le propriétaire
- Services
- 260 €
- Dépôt de garantie
- 1 082 €
- Avance sur loyer
- Contacter le propriétaire
Emplacement