3 pièces appartement dans Orsay
-
Surface
- 60 m²
-
Type de propriété
- Appartement
-
Pièces
- 3 pièces
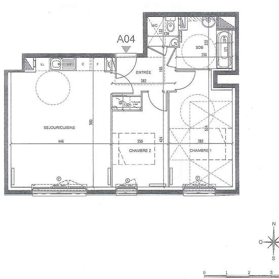
L'agence le grand chêne vous propose : Dans une résidence de 2019 à deux pas du centre ville d'ORSAY, à 12 minutes à pied du RER ORSAY ville. Un appartement au rez-de-chaussée de 3 pièces de 60,74m² comprenant : une entrée, pièce principale avec une cuisine ouverte aménagée et semi équipée, 2 chambres, salle de bains, water-closet. 1 place de parking en sous-sol. l' appartement possède la fibre optique. Libre à partir du 4 Février 2026 Les provisions de charges comprennent : eau froide, eau chaude, chauffage, entretien des parties communes. ...
- Louer
- 1 213 € par mois
- Ville
- 91400, Orsay
- Durée de location
- -
- Propriétaire vérifié
- Oui
- Date
- Il y a 15 jours
- Disponible
- Contacter le propriétaire
- Services
- Contacter le propriétaire
- Dépôt de garantie
- Contacter le propriétaire
- Avance sur loyer
- Contacter le propriétaire
Emplacement