3 pièces appartement dans Ozoir la ferriere
-
Surface
- 90 m²
-
Type de propriété
- Appartement
-
Pièces
- 3 pièces
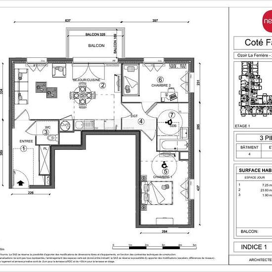
OZOIR LA FERRIERE, dans la résidence COTE FAUBOURG, nous vous proposons un appartement T3, d'une superficie de 63.80 m² situé au 1er étage. Il se compose d'une entrée avec placard, d'un séjour-cuisine de 23.60 m² donnant sur un balcon de 5.50 m² , de deux chambres de 13.30 m² et 9.15 m², d'un dégagement et d'une salle de bain avec WC séparé. Emplacement parking extérieur. Chauffage et eau chaude individuels gaz. Eau froide, ascenseur, espaces verts communs et entretien parties communes, compris dans les provisions sur charges mensuelles et d...
- Louer
- 850 € par mois
- Ville
- 77330, Ozoir la ferriere
- Durée de location
- -
- Propriétaire vérifié
- Oui
- Date
- Il y a 15 jours
- Disponible
- Contacter le propriétaire
- Services
- Contacter le propriétaire
- Dépôt de garantie
- Contacter le propriétaire
- Avance sur loyer
- Contacter le propriétaire
Emplacement