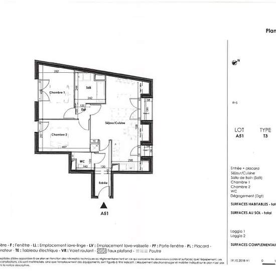
3 pièces appartement dans Pantin
-
Surface
- 60 m²
-
Type de propriété
- Appartement
-
Pièces
- 3 pièces
Nouvelle résidence au coeur d'un quartier en pleine mutation, proposant dans son environnement immédiat toutes les commodités nécessaires à une alliance parfaite entre vie professionnelle et vie familiale. Le quartier est desservi par la ligne 7 du métro et des lignes de bus permettant de relier le centre de Paris en 25 minutes seulement. On retrouve au coeur de la ville de Pantin, le canal de l'Ourcq, avec ses berges aménagées en pistes cyclables et en promenades qui se prêtent bien au jogging ou aux balades à vélo. Nous vous proposons un...
- Louer
- 1 291 € par mois
- Ville
- 93500, Pantin
- Durée de location
- -
- Propriétaire vérifié
- Oui
- Date
- Il y a 5 jours
- Disponible
- Contacter le propriétaire
- Services
- 120 €
- Dépôt de garantie
- 2 582 €
- Avance sur loyer
- Contacter le propriétaire
Emplacement