3 pièces appartement dans Paris 14
-
Surface
- 69 m²
-
Type de propriété
- Appartement
-
Pièces
- 3 pièces
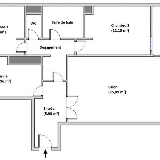
Avenue de la Sibelle - Parc Montsouris Bel appartement 3 pièces de 69,53 m², traversant, avec terrasse de 5,60 m² et une cave, situé au 4e étage (avec ascenseur) d'un immeuble récent et parfaitement entretenu par gardien. Il se compose d'une entrée avec placard, un grand séjour de 25 m², une cuisine aménagée, 2 chambres, une salle de bain et des WC séparés. Eau chaude collective / Chauffage individuel électrique / Double vitrage / Excellente isolation / Fibre optique Garants ou assurance "GarantMe" nécessaire ! Disponible début février 2026 ...
- Louer
- 2 660 € par mois
- Ville
- 75014, Paris 14
- Durée de location
- -
- Propriétaire vérifié
- Oui
- Date
- Aujourd'hui
- Disponible
- Contacter le propriétaire
- Services
- Contacter le propriétaire
- Dépôt de garantie
- Contacter le propriétaire
- Avance sur loyer
- Contacter le propriétaire
Emplacement