3 pièces appartement dans Rouen
-
Surface
- 66 m²
-
Type de propriété
- Appartement
-
Pièces
- 3 pièces
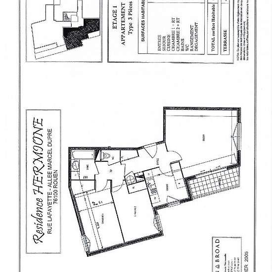
Dans résidence de standing de 2007 sécurisée, proche Cité Administrative et rive droite de Rouen, bel appartement 3 pièces de 66 m² au 1er étage comprenant : Une entrée avec placard, un séjour ouvrant sur une terrasse, une cuisine non équipée, 2 chambres, une salle de bain, WC séparé. Terrasse - Parking n°10 - Interphone- Ascenseur Les charges comprennent : L'entretien des parties communes, charges d'ascenseur, de parking et VMC. Les proximités : Cité Administrative, Centre commercial St Sever, tous commerces et transports (Bus et Métro), 7 ...
- Louer
- 888 € par mois
- Ville
- 76100, Rouen
- Durée de location
- -
- Propriétaire vérifié
- Oui
- Date
- Il y a 5 jours
- Disponible
- Contacter le propriétaire
- Services
- Contacter le propriétaire
- Dépôt de garantie
- Contacter le propriétaire
- Avance sur loyer
- Contacter le propriétaire
Emplacement