3 pièces appartement dans Sarzeau
-
Surface
- 65 m²
-
Type de propriété
- Appartement
-
Pièces
- 3 pièces
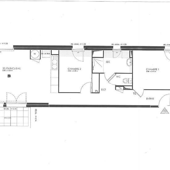
À louer appartement de type 3 de 65 m². Retrouvez au coeur de ce bel appartement un salon avec une cuisine ouverte (non aménagée), un balcon, deux chambres ainsi qu'une salle d'eau. WC séparé. DPE B (Frais annuels d'énergie : 394€, prix moyen des énergies indexés au 15 août 2015) Loyer : 649.77€ Provisions charges : 103.28€ Loyer stationnement : 22.19€ Aiguillon Construction - Pas de frais d'agence Les informations sur les risques auxquels ce bien est exposé sont disponibles sur le site Géorisques : georisques. gouv. fr.
- Louer
- 752 € par mois
- Ville
- 56370, Sarzeau
- Durée de location
- -
- Propriétaire vérifié
- Oui
- Date
- Il y a 19 jours
- Disponible
- Contacter le propriétaire
- Services
- Contacter le propriétaire
- Dépôt de garantie
- 671 €
- Avance sur loyer
- Contacter le propriétaire
Emplacement