3 pièces appartement dans St ambroix
-
Surface
- 75 m²
-
Type de propriété
- Appartement
-
Pièces
- 3 pièces
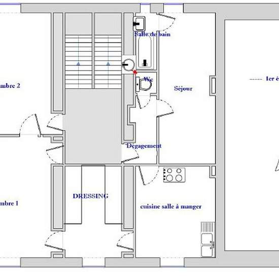
Grand appartement 4 pièces de 83 m² au 1er étage. Situé sur la rue de la République à SAINT-AMBROIX, à proximité des commerces et services, cet appartement de 85m² traversant. Il est composé d'une entrée, d'une cuisine/salle à manger, d'une séjour, de deux chambres, d'un bureau, d'une salle de bain et d'un WC. Libre de suite.
- Louer
- 520 € par mois
- Ville
- 30500, St ambroix
- Durée de location
- -
- Propriétaire vérifié
- Oui
- Date
- Il y a 25 jours
- Disponible
- Contacter le propriétaire
- Services
- 30 €
- Dépôt de garantie
- 520 €
- Avance sur loyer
- Contacter le propriétaire
Emplacement