3 pièces appartement dans St jean de braye
-
Surface
- 60 m²
-
Type de propriété
- Appartement
-
Pièces
- 3 pièces
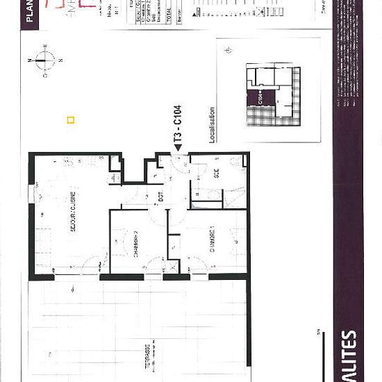
Dans Résidence neuve dans centre ville, proche du tram et des écoles, F3 dans Résidence avec ascenseur comprenant : une entrée avec placard, un séjour sur cuisine, un dégagement, une salle d'eau, WC séparés , 2 chambres avec placards . Chauffage au gaz. Une belle terrasse de 81.53 . Parking en sous-sol . Libre Conditions de ressources. Les informations sur les risques auxquels ce bien est exposé sont disponibles sur le site Géorisques :
- Louer
- 700 € par mois
- Ville
- 45800, St jean de braye
- Durée de location
- -
- Propriétaire vérifié
- Oui
- Date
- Il y a 24 jours
- Disponible
- Contacter le propriétaire
- Services
- 80 €
- Dépôt de garantie
- 700 €
- Avance sur loyer
- Contacter le propriétaire
Emplacement