3 pièces appartement dans St jory
-
Surface
- 59 m²
-
Type de propriété
- Appartement
-
Pièces
- 3 pièces
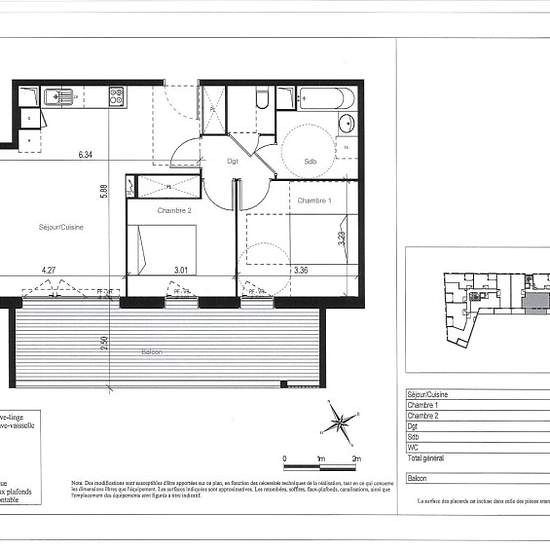
A SAINT-JORY, au coeur du centre-ville, de ses commerces et à moins deux minutes à pied de la gare, agréable appartement de type 3, est composé d'une entrée, d'un séjour avec son coin cuisine équipée (évier inox, plaque 4 feux, hotte, meubles hauts et bas), de deux chambres dont une avec placard, d'une salle de bain aménagée et d'un coin WC séparé. Visite virtuelle sur notre site ELYADE (Réf: 19971) LES PLUS : - un balcon exposé sud-ouest, de 18.80m² - deux places de stationnement en sous-sol, - les commerces de proximité et les écoles à m...
- Louer
- 645 € par mois
- Ville
- 31790, St jory
- Durée de location
- -
- Propriétaire vérifié
- Oui
- Date
- Il y a 4 jours
- Disponible
- Contacter le propriétaire
- Services
- 75 €
- Dépôt de garantie
- 645 €
- Avance sur loyer
- Contacter le propriétaire
Emplacement