3 pièces appartement dans St jory
-
Surface
- 60 m²
-
Type de propriété
- Appartement
-
Pièces
- 3 pièces
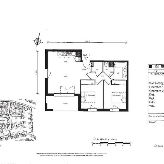
À louer !Agréable appartement T3 avec balcon et parking Nous vous proposons ce charmant appartement de 3 pièces, situé dans une résidence avec piscine calme et bien entretenue, offrant un cadre de vie confortable et fonctionnel. Dès l'entrée, vous serez accueilli par un hall équipé d'un placard intégré, idéal pour le rangement. Le séjour lumineux s'ouvre sur une cuisine entièrement équipée ( évier en inox, une plaque de cuisson 4 feux, une hotte, des meubles hauts et bas).L'espace nuit se compose de deux chambres, dont une avec placard, parf...
- Louer
- 732 € par mois
- Ville
- 31790, St jory
- Durée de location
- -
- Propriétaire vérifié
- Oui
- Date
- Il y a 12 jours
- Disponible
- Contacter le propriétaire
- Services
- Contacter le propriétaire
- Dépôt de garantie
- Contacter le propriétaire
- Avance sur loyer
- Contacter le propriétaire
Emplacement