3 pièces appartement dans St ouen sur seine
-
Surface
- 90 m²
-
Type de propriété
- Appartement
-
Pièces
- 3 pièces
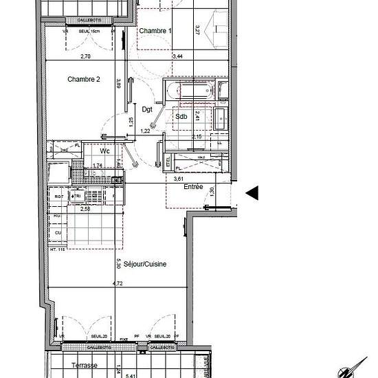
Dans une très belle résidence neuve de standing avec gardien et proposant des services innovants tels que des boites à colis connectées, nous vous proposons à la location cet appartement de 3 pièces. Situé au 7ème étage avec ascenseur, cet appartement de 61,30 m² se compose : d’une entrée avec placard, d’une cuisine aménagée et semi-équipée (plaques de cuisson à induction et hotte) d'un séjour donnant sur une terrasse de 6,66 m², d'un dégagement avec placard, de deux chambres spacieuses dont une donnant sur un balcon de 4m² , d’une salle de ...
- Louer
- 1 320 € par mois
- Ville
- 93400, St ouen sur seine
- Durée de location
- -
- Propriétaire vérifié
- Oui
- Date
- Aujourd'hui
- Disponible
- Contacter le propriétaire
- Services
- Contacter le propriétaire
- Dépôt de garantie
- Contacter le propriétaire
- Avance sur loyer
- Contacter le propriétaire
Emplacement