3 pièces appartement dans Villeneuve tolosane
-
Surface
- 66 m²
-
Type de propriété
- Appartement
-
Pièces
- 3 pièces
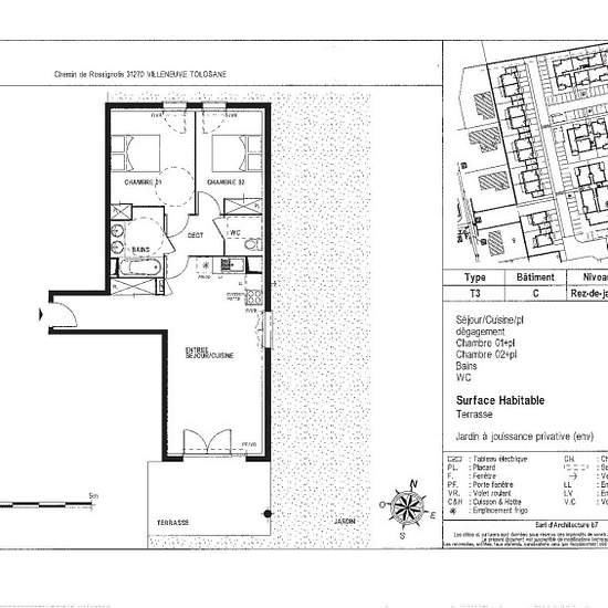
A Villeneuve Tolosane, au coeur du quartier résidentiel proche du stade, venez découvrir notre programme. Nous vous proposons cette T3 composé d'une entrée avec placard, séjour avec cuisine équipée (évier inox, plaque 4 feux, hotte, meubles hauts et bas), deux chambres avec placard, salle de bain aménagée et WC séparé, une terrasse de 13.50m², un jardin de 130m², deux places de parking aériennes. Prévoir la souscription d'un contract d'eau pour le logement. Les plus : - arrêt ligne bus Tisséo 47 arrêt Rossignolis, - gare Portet/St Simon à 10...
- Louer
- 694 € par mois
- Durée de location
- -
- Propriétaire vérifié
- Oui
- Date
- Il y a 3 jours
- Disponible
- Contacter le propriétaire
- Services
- 75 €
- Dépôt de garantie
- 694 €
- Avance sur loyer
- Contacter le propriétaire
Emplacement