3 pièces appartement dans Villeneuve tolosane
-
Surface
- 57 m²
-
Type de propriété
- Appartement
-
Pièces
- 3 pièces
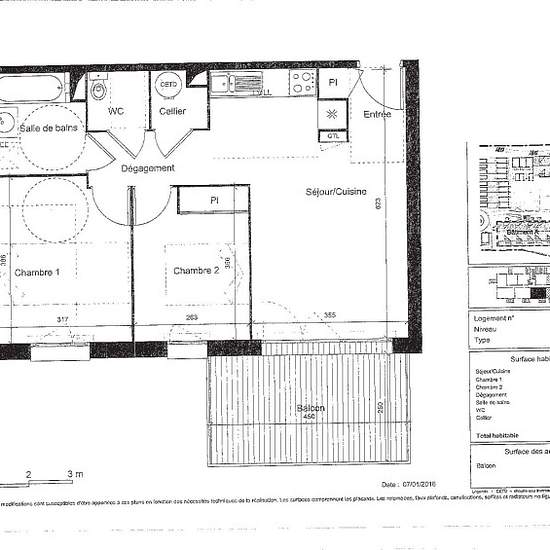
Résidence située à proximité du Gymnase Pierre de Coubertin Visite virtuelle sur notre site ELYADE (Réf:18892) Nous vous proposons cet appartement T3 situé au 1er étage avec ascenseur. Il est composé d'une entrée avec placard, d'un séjour avec cuisine équipée donnat sur un balcon de 11.21m², de deux chambres dont une avec placard, d'une salle de bains aménagée , d'un WC séparé et d'unun cellier. Le logement bénéficie de deux emplacements en sous-sol. Les plus: - à proximité des transports arrêt de bus 85 - commerces à proximité Louez un loge...
- Louer
- 686 € par mois
- Durée de location
- -
- Propriétaire vérifié
- Oui
- Date
- Il y a 12 jours
- Disponible
- Contacter le propriétaire
- Services
- Contacter le propriétaire
- Dépôt de garantie
- Contacter le propriétaire
- Avance sur loyer
- Contacter le propriétaire
Emplacement