3 pièces maison dans Couloisy
-
Surface
- 63 m²
-
Type de propriété
- Maison
-
Pièces
- 3 pièces
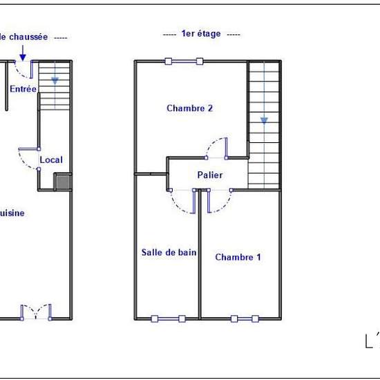
A louer à Couloisy, au sein d'une petite résidence, cette maison de type T3, agrémentée d'une terrasse, d'un jardinet et d'un garage box. Au rez-de-chaussée, vous trouverez une pièce de vie lumineuse d'environ 31m², comprenant une cuisine équipée et aménagée avec four, plaque de cuisson, et hotte (emplacement lave-vaisselles). À l'étage, le palier dessert deux chambres ainsi qu'une salle de bain équipée d'une baignoire, d'un meuble vasque, un emplacement lave-linge et de toilettes. À l'extérieur, vous trouverez une terrasse en béton lavé d'e...
- Louer
- 880 € par mois
- Ville
- 60350, Couloisy
- Durée de location
- -
- Propriétaire vérifié
- Oui
- Date
- Il y a 3 jours
- Disponible
- Contacter le propriétaire
- Services
- Contacter le propriétaire
- Dépôt de garantie
- Contacter le propriétaire
- Avance sur loyer
- Contacter le propriétaire
Emplacement