3 pièces maison dans St alban
-
Surface
- 82 m²
-
Type de propriété
- Maison
-
Pièces
- 3 pièces
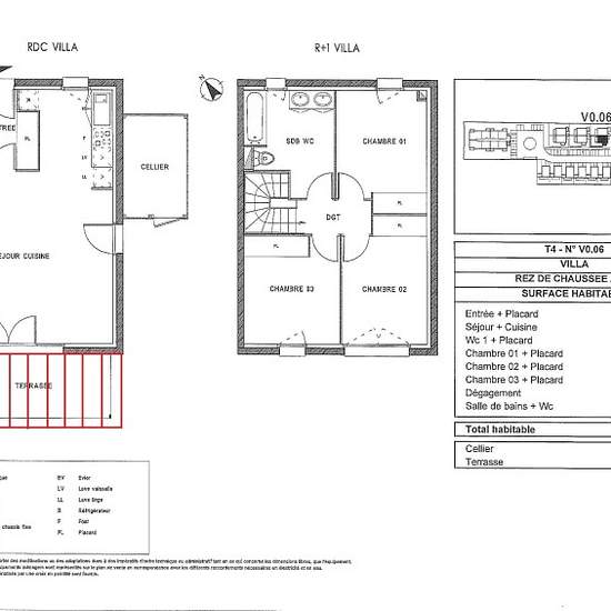
À Saint-Alban, découvrez cette charmante villa T4 à louer. Elle se compose d'une entrée avec placard, d'une cuisine moderne entièrement équipée ouverte sur un séjour lumineux (meubles haut et bas, hotte aspirante, plaque vitrocéramique 4 feux, emplacement lave-vaisselle et four). Vous apprécierez sa salle de bain aménagée, ses deux WC dont un séparé, ainsi que ses trois chambres confortables avec placard et parquet. À l'extérieur, profitez d'une terrasse idéale pour vos moments de détente et de deux parkings aériens. Pour votre confort, la v...
- Louer
- 920 € par mois
- Ville
- 31140, St alban
- Durée de location
- -
- Propriétaire vérifié
- Oui
- Date
- Il y a 10 jours
- Disponible
- Contacter le propriétaire
- Services
- Contacter le propriétaire
- Dépôt de garantie
- Contacter le propriétaire
- Avance sur loyer
- Contacter le propriétaire
Emplacement