4 pièces appartement dans Bordeaux
-
Surface
- 78 m²
-
Type de propriété
- Appartement
-
Pièces
- 4 pièces
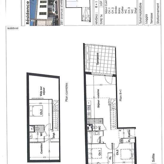
Location exclusive - Bordeaux, 251 Avenue d'Ares 33000 BORDEAUX. Appartement dans résidence récente, sis au 1er étage, d'une surface de 78 m² (90 m² au sol), avec belle terrasse de 19 m² et place de parking sécurisée. Entrée, séjour avec cuisine ouverte (placards, évier, hotte, plaques) de 29 m² donnant directement sur terrasse, 3 chambres, placards, salle de bains. Libre. Attention LOI PINEL sur ce bien donc plafonnement de revenus à consulter sur internet selon la composition du foyer fiscal. FA 1010 € Honoraires de 1 010 € TTC à la charge...
- Louer
- 1 111 € par mois
- Ville
- 33000, Bordeaux
- Durée de location
- -
- Propriétaire vérifié
- Oui
- Date
- Il y a 6 jours
- Disponible
- Contacter le propriétaire
- Services
- Contacter le propriétaire
- Dépôt de garantie
- Contacter le propriétaire
- Avance sur loyer
- Contacter le propriétaire
Emplacement