4 pièces appartement dans Grenoble
-
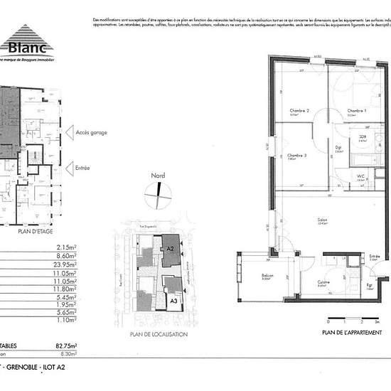
Surface
- 83 m²
-
Type de propriété
- Appartement
-
Pièces
- 4 pièces
Grenoble, T4 de 82.75m² avenue de Washington, au deuxième étage d’une résidence récente sécurisée (Vigik, visiophone, porte à code) proche de toutes commodités. Appartement composé d’une entrée avec rangement ouvrant sur le salon de 23,95 m² et donnant sur une cuisine équipée semi-ouverte de 8,60 m² (four, plaque électrique, placard haut et bas) et un balcon de 8,30 m² avec un éclairage et une prise. Coin nuit séparé, 3 chambres dont deux de 11,05 m² et une de 11,80 m². WC indépendant. Salle de bain avec baignoire, double vasques, meuble vas...
- Louer
- 900 € par mois
- Ville
- 38100, Grenoble
- Durée de location
- -
- Propriétaire vérifié
- Oui
- Date
- Aujourd'hui
- Disponible
- Contacter le propriétaire
- Services
- Contacter le propriétaire
- Dépôt de garantie
- Contacter le propriétaire
- Avance sur loyer
- Contacter le propriétaire
Emplacement