4 pièces appartement dans Villeneuve tolosane

Surface
96 m²
Type de propriété
Appartement
Pièces
4 pièces

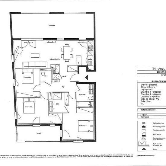
Beau T4 de 96 m2, avec double exposition. Il est composé d'une entrée, d'une pièce à vivre avec cuisine équipée (évier inox, plan de travail, plaque 4 feux, hotte, meubles hauts et bas), de trois chambres avec placards, d'une salle d'eau et d'une salle de bains aménagées, de deux WC, d'une terrasses de 30.23m² et d'une loggia de 9.76m². Il bénéficie de deux places de parking en sous-sol. Les plus : la proximité des accès autoroutiers principaux du sud de Toulouse, - la ligne de bus Tisséo, arrêt Jean Marais, à moins de 5 mn à pied, - un supe...

Louer
990 € par mois
Durée de location
-
Propriétaire vérifié
Oui
Date
Hier
Disponible
Contacter le propriétaire
Services
Contacter le propriétaire
Dépôt de garantie
Contacter le propriétaire
Avance sur loyer
Contacter le propriétaire
Emplacement