4 pièces maison dans Angouleme
-
Surface
- 73 m²
-
Type de propriété
- Maison
-
Pièces
- 4 pièces
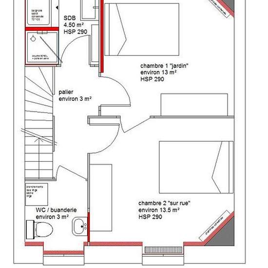
À louer sur Angoulême maison F4 meublée. Ce logement d'une superficie de 73 m² est disponible le 01 / 05 / 2026 entre particuliers pour un loyer de 850 € Avantages du logement : - Cave ou local - Baignoire - Garage - Grand séjour - Cuisine équipée - Jardin Ce propriétaire utilise LocService pour sélectionner ses futurs locataires. Pour proposer directement votre candidature pour ce logement ET toutes les locations conformes à votre recherche, il suffit de vous inscrire sur LocService. Les propriétaires vous contactent directement et les loca...
- Louer
- 850 € par mois
- Ville
- 16000, Angouleme
- Durée de location
- -
- Propriétaire vérifié
- Oui
- Date
- Il y a 4 jours
- Disponible
- Contacter le propriétaire
- Services
- Contacter le propriétaire
- Dépôt de garantie
- 850 €
- Avance sur loyer
- Contacter le propriétaire
Emplacement