4 pièces maison dans Le grau du roi
-
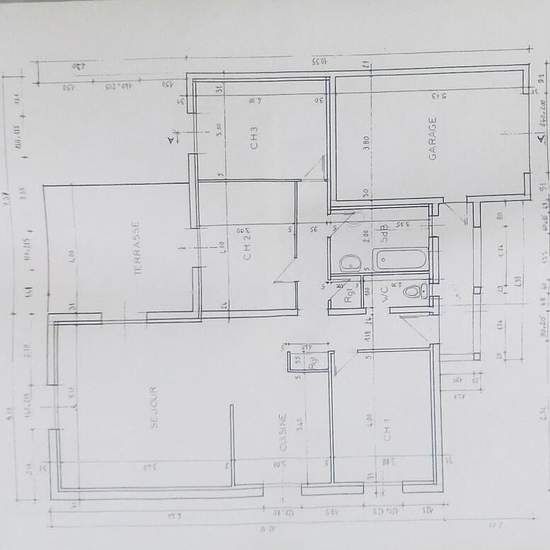
Surface
- 97 m²
-
Type de propriété
- Maison
-
Pièces
- 4 pièces
Fiche id-sit16573g : au grau du roi / port camargue, dans un quartier calme à proximité du lac salonique, à louer villa individuelle type p4 de plain-pied d'une surface de 97 m² sur une parcelle de 420 m². Elle se compose d'un séjour de 33 m² avec climatisation et sa cuisine ouverte semi équipée de 8 m², baies vitrées donnant accès aux terrasses et jardin. 3 chambres de 12 m² chacune. Salle de bain et wc séparé. Placards de rangements, porte d'accès au garage de 21 m². Double vitrage. Expo sud. Places de parking. Références exigés, les dossi...
- Louer
- 1 500 € par mois
- Ville
- 30240, Le grau du roi
- Durée de location
- -
- Propriétaire vérifié
- Oui
- Date
- Aujourd'hui
- Disponible
- Contacter le propriétaire
- Services
- Contacter le propriétaire
- Dépôt de garantie
- Contacter le propriétaire
- Avance sur loyer
- Contacter le propriétaire
Emplacement