5 pièces appartement dans Colombes
-
Surface
- 92 m²
-
Type de propriété
- Appartement
-
Pièces
- 5 pièces
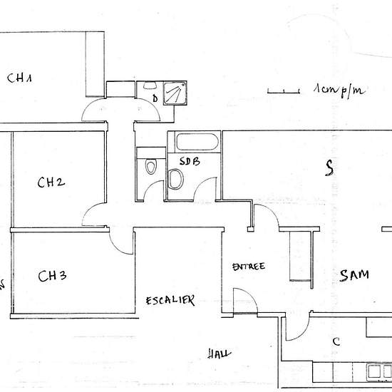
Place de l'hôtel de ville de COLOMBES, dans une résidence avec Gardien et ascenseur, le cabinet DLI PRUDHOMMEAUX vous propose ce bel appartement familial situé au 2ème étage comprenant, une entrée avec placards, un double séjour, une cuisine aménagée et équipée (Lave Linge, Lave vaisselles, four et plaques vitro céramiques), 3 chambres, 2 salles d'eau et un wc. Le chauffage et l'eau chaude sont collectifs. Le + de ce logement, une place de parking en sous sol.
- Louer
- 1 945 € par mois
- Ville
- 92700, Colombes
- Durée de location
- -
- Propriétaire vérifié
- Oui
- Date
- Il y a 2 jours
- Disponible
- Contacter le propriétaire
- Services
- Contacter le propriétaire
- Dépôt de garantie
- Contacter le propriétaire
- Avance sur loyer
- Contacter le propriétaire
Emplacement