5 pièces appartement dans Ecully

Surface
113 m²
Type de propriété
Appartement
Pièces
5 pièces

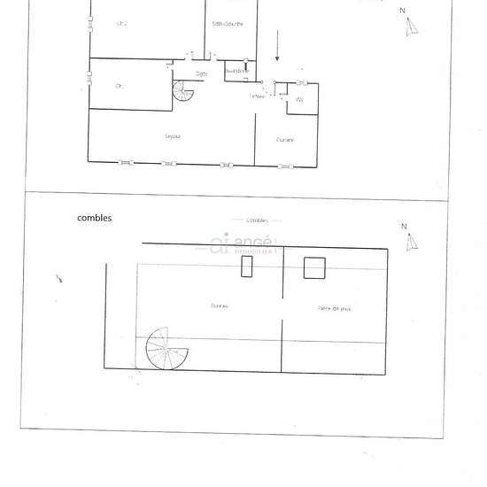
Au sein d'une petite copropriété intimiste, au calme, à deux pas des commerces, écoles et transports en commun, très agréable DUPLEX MEUBLE en parfait état de 113 m² dont 79 m² carrez, et combles aménagées 2 pièces ( 1 chambre - 1 bureau ) IDEAL POUR COLOCATION - GRANDES ECOLES A PROXIMITE Au premier niveau vous trouverez, 1 entrée, 1 toilette, 1 cuisine toute équipée avec passe plat donnant sur un magnifique et grand salon lumineux, deux chambres, 1 salle de bains avec douche et baignoire, 1 buanderie. L'ensemble est très agréablement meubl...

Louer
1 600 € par mois
Durée de location
-
Propriétaire vérifié
Oui
Date
Il y a 4 jours
Disponible
Contacter le propriétaire
Services
Contacter le propriétaire
Dépôt de garantie
Contacter le propriétaire
Avance sur loyer
Contacter le propriétaire
Emplacement