5 pièces appartement dans Neuilly sur seine
-
Surface
- 150 m²
-
Type de propriété
- Appartement
-
Pièces
- 5 pièces
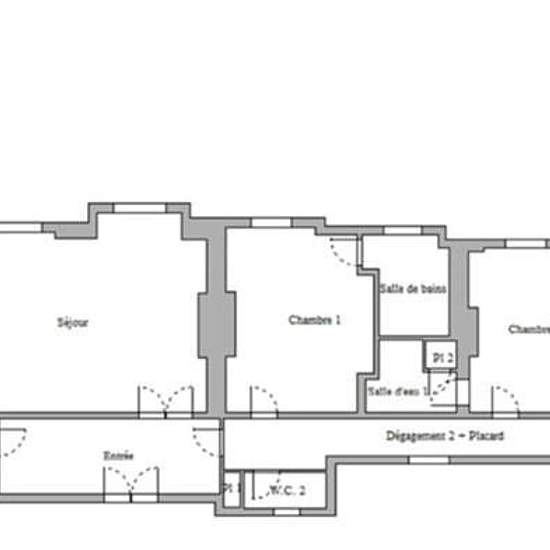
NEUILLY CENTRE : Immeuble ancien de grand standing, idéalement situé proche de la mairie. Appartement en excellent état, au calme et lumineux bénéficiant d'une agréable vue dégagée au 6ème étage. Il se compose d'une entrée, d'un double séjour, d'une cuisine aménagée équipée jouxtant la réception, 3 belles chambres, une salle de bains, 2 salles d'eau et de nombreux rangements. Une cave complète ce bien. Belles prestations: parquets, moulures, cheminées. Contact Valentine SEBAOUN :
- Louer
- 4 450 € par mois
- Ville
- 92200, Neuilly sur seine
- Durée de location
- -
- Propriétaire vérifié
- Oui
- Date
- Il y a 2 jours
- Disponible
- Contacter le propriétaire
- Services
- Contacter le propriétaire
- Dépôt de garantie
- Contacter le propriétaire
- Avance sur loyer
- Contacter le propriétaire
Emplacement