5 pièces maison dans St denis
-
Surface
- 145 m²
-
Type de propriété
- Maison
-
Pièces
- 5 pièces
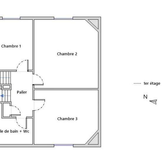
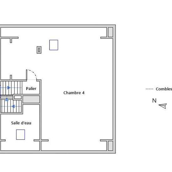
Découvrez cette spacieuse maison individuelle de 145,51 m², idéale pour une famille à la recherche de confort, d'espace et de tranquillité, tout en restant proche des commodités et des transports. Les atouts du bien : -5 pièces principales lumineuses et bien agencées - Cuisine entièrement équipée - Jardin privatif, parfait pour les moments de détente ou les repas en extérieur - Chauffage individuel au gaz et eau chaude sanitaire individuelle - Fibre optique :idéal pour le télétravail Copropriété sécurisée avec digicode et interphone Maison c...
- Louer
- 1 975 € par mois
- Ville
- 93200, St denis
- Durée de location
- -
- Propriétaire vérifié
- Oui
- Date
- Aujourd'hui
- Disponible
- Contacter le propriétaire
- Services
- Contacter le propriétaire
- Dépôt de garantie
- Contacter le propriétaire
- Avance sur loyer
- Contacter le propriétaire
Emplacement