6 pièces maison dans Claye souilly
-
Surface
- 180 m²
-
Type de propriété
- Maison
-
Pièces
- 6 pièces
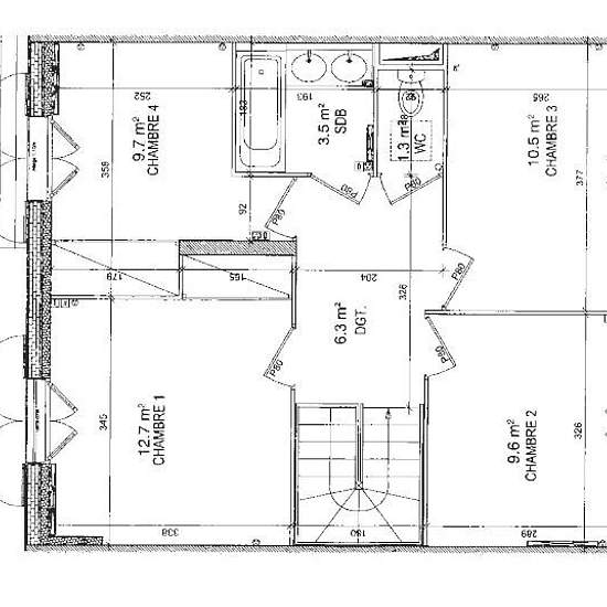
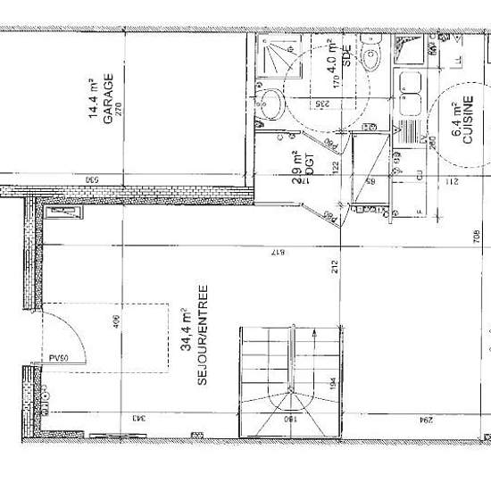
Située à Claye-Souilly, au 8-26 Allée Johann Sebastian Bach, dans un environnement résidentiel calme, cette maison familiale de 126 m² sur trois niveaux bénéficie d’un jardin privatif d’environ 100 m², d’un garage attenant et d’un stationnement extérieur, à proximité des commodités. Descriptif du bien : Rez-de-chaussée : Un séjour lumineux, donnant accès au jardin. Une cuisine semi-ouverte. Une salle d’eau avec WC, pratique au quotidien. 1er étage : Quatre chambres avec placards intégrés. Une salle de bains. Un WC séparé. 2ᵉ étage : Une cham...
- Louer
- 1 220 € par mois
- Ville
- 77410, Claye souilly
- Durée de location
- -
- Propriétaire vérifié
- Oui
- Date
- Il y a 13 jours
- Disponible
- Contacter le propriétaire
- Services
- Contacter le propriétaire
- Dépôt de garantie
- Contacter le propriétaire
- Avance sur loyer
- Contacter le propriétaire
Emplacement