7 pièces maison dans Chatou
-
Surface
- 144 m²
-
Type de propriété
- Maison
-
Pièces
- 7 pièces
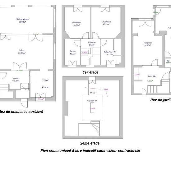
Située sur le bas de Chatou (8 min à pied du marché et du RER), maison ancienne rénovée lumineuse. Le rez-de-chaussée surélevé se compose d'une entrée avec toilettes, d'une cuisine semi-ouverte, d'un séjour de 25 m² ouvert sur une salle à manger de 19 m² avec vue sur le jardin. Le 1er étage dessert 2 chambres, un bureau avec rangement et une salle de douche avec WC. Belle chambre mansardée sous les toits avec espace de rangement. Le rez-de-jardin abrite une chambre de près de 20 m², bénéficiant d'un accès indépendant possible, avec une salle...
- Louer
- 3 450 € par mois
- Ville
- 78400, Chatou
- Durée de location
- -
- Propriétaire vérifié
- Oui
- Date
- Aujourd'hui
- Disponible
- Contacter le propriétaire
- Services
- Contacter le propriétaire
- Dépôt de garantie
- Contacter le propriétaire
- Avance sur loyer
- Contacter le propriétaire
Emplacement